Appartement huren: niet meer beschikbaar Oosterengweg in Hilversum

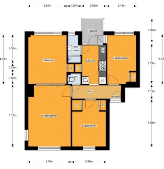
  • 72 m2
  • 3 kamers
  • ? Begindatum
  • Onbepaalde tijd
Op deze pagina vind je alle informatie over dit Appartement in Hilversum. Als je vragen hebt kun je contact opnemen met de aanbieder.

Bemiddelingskosten
Nee
Object
Direct bij de eigenaar
Borg
860
Garantiestelling
Niet mogelijk
Huurtoeslag
Mogelijk
Inkomen eis
N.V.T.
Huurtermijn
Onbepaalde termijn
Oplevering
Kaal

MEER

Algemene informatie

Stad Hilversum
Wijk/buurt: Anders
Inschrijven gemeente: Ja
Opleverniveau: Kaal
Huisgenoten: Geen
Begindatum: Vraag de adverteerder
Bezichtiging In overleg

Faciliteiten

Eigen badkamer
Eigen keuken
Eigen toilet
Eigen voordeur
Vraag de adverteerder
Vraag de adverteerder
Eigen woonkamer
Tonen op kaart